COMPLESSO DELLA CHIESA DI S. ANTONIO E DEL CONVENTO
FRANCESCANO IN CAPRAIA ISOLA
PROGETTO DI RESTAURO CONSERVATIVO E VALORIZZAZIONE
Relazione illustrativa
- Obiettivi dell’intervento
Il complesso della Chiesa e del convento di S.Antonio e stato abbandonato o malamente utilizzato a partire dal momento in cui l’immobiIe viene totalmente dismesso a seguito della chiusura della Colonia Penale. Sono ormai trascorsi circa 30 anni.
Eppure il complesso presenta gli interessanti caratteri architettonici propri di una tipico impianto monastico seicentesco appartenente ad un’architettura minore, ma non per questo meno interessante. L’integrità dei principali edifici documenta l’impianto originario, aumentandone l’interesse per il futuro fruitore.
La chiesa ad unica navata con sei cappelle rappresenta l’impianto originario seicentesco.
Nessun intervento successivo significativo ha modificato lo spirito di semplicità e di solidità, che si percepisce entrando nella chiesa e che coerentemente è il segno della presenza di una comunità di frati francescani minori, che avevano identificato la povertà come una delle regole fondative del proprio operare.
Soprattutto la facciata coeva presenta, nel linguaggio delle sue forme seicentesche, un prospetto molto equilibrato, scevro da sottolineature od enfasi barocche.
L’alternarsi delle campiture definite dalle lesene verticali, dalle bordature orizzontali e dai vuoti delle finestre, sottolineate dai cromatismi, che ancora oggi si possono intravedere, conferiscono alla facciata un aspetto di grande armonia.
Una seconda funzione che il monumento svolge è rappresentato dalla sua capacità di documentare la memoria della comunità.
lnsieme al Castello, alla Chiesa del Porto e alla Torre dello Zenoblto, S. Antonio ha la capacita di rappresentare l’identità e la continuità, anche se per fasi alterne, degli abitanti di Capraia.
ll complesso é posizionato sul promontorio che domina il porto, e dal punto di vista paesaggistico rappresenta una emergenza di grande valore.
Il suo recupero può attivare un processo di riqualificazione di tutto il comparto, che verso il porto presenta una serie di fabbricati di nessun interesse architettonico, né storico, né ambientale, che necessitano invece di un intervento di ristrutturazione urbanistica.
Gli obiettivi che il progetto si prefigge sono pertanto:
– il restauro conservativo del bene, con l’intendimento di consolidare e conservare un complesso che altrimenti sarebbe destinato in pochi anni ad un degrado irreversibile;
– la valorizzazione del bene, come contenitore di nuove funzioni qualificate in grado di dare vita al complesso con una presenza quotidiana di personale
– la creazione di un polo di funzioni pubbliche e culturali
– l’attivazione di un processo virtuoso di riqualificazione della porzione storica del complesso, in grado di rendere interessante anche dal punto di vista economico
-l’intervento di risorse private sulle altre volumetrie prive di interesse storico architettonico del comparto, pur nella consapevolezza della delicatezza paesaggistica del possibile futuro intervento.
Un’associazione culturale no-profit di recente formatasi con il nome di ” Amici della chiesa di S.Antonio“, costituita da persone che da anni hanno scelto Capraia come propria dimora, hanno preso a cuore il futuro del complesso monastico, volendosi impegnare nel promuoverne il restauro generale e raccogliendo fondi in particolare per il restauro della facciata della Chiesa, che in sinergia con il Comune si sono impegnati a realizzare.
Con questo taglio culturale e sotto l’egida dell’Associazione, un gruppo di professionisti, con un forte approccio interdisciplinare, ha predisposto un progetto generale di restauro e valorizzazione del complesso. Una volta ottenuto il parere della competente Sovrintendenza, il progetto potrà offrire al Comune di Capraia la premessa per accedere alle graduatorie per l’ottenimento dei necessari finanziamenti.
Il progetto, organizzato in stralci funzionali è predisposto per essere attuato per successive fasi.
2. Principali fasi storiche
Fino al 1406 l’isola fa parte della Repubblica di Pisa.
Quando la Repubblica di Pisa perde la sua indipendenza, l’isola passa sotto il controllo della famiglia corsa dei De Mari, alleata ai Genovesi.
Nel 1506 Capraia entra a far parte del Banco di S.Giorgio, che realizza il potenziamento delle strutture difensive dell’isola.
Nel 1655 alcuni frati Francescani Minori si insediano sull’ Isola, richiedendo la costruzione di una chiesa e di un convento, a servizio della comunità Capraiese.
II complesso viene cosi costruito in tempi brevissimi tra il 1660 eil 1665. La chiesa viene dedicata a S. Antonio da Padova ed il Convento a S.Francesco.
L’impianto della Chiesa viene realizzato in un’unica fase, mentre il Convento inizialmente viene costruito realizzando l’ala Nord ed Est, mentre il lato Sud era delimitato da una cinta muraria che con la chiesa definiva l’ attuale chiostro.
La lettura stratigrafica dei paramenti murari, l’analisi degli elementi architettonici e la verifica incrociata con le iconografie storiche recuperate negli archivi confermano tale fase costruttiva.
La ricerca storica allegata meglio documenta le alterne vicende che hanno portato alla realizzazione del Convento, evidenziando anche i contrasti con la locale Parrocchia e le diverse fazioni tra la popolazione,
Per tutto il settecento la Comunità Francescana sviluppa con alterne vicende il proprio ruolo, mantenendo in buona salute l’immobiIe, che viene utilizzato a pieno regime, anche realizzando un’ampia zona di ortaglia, in grado di fornire cibo alla Comunità.
Il periodo Napoleonico sopprime l’Ordine religioso e da quel momento il Convento viene abbandonato.
Nel 1862 Io Stato italiano decreta l’acquisizione dell’ immobiIe, che dalle carte storiche risulta ancora costituito dalla Chiesa e da due ali del Convento.
Nel 1873 passa in uso alla Colonia Penale Agricola di recente costituita. E’ di quegli anni la costruzione dell’ala Sud, che probabilmente ingloba la cinta muraria preesistente, al fine di
rispondere alle esigenze funzionali del carcere.
Successivamente, forse gia nel ‘900, l’ala Sud viene proseguita verso Est realizzando il nuovo corpo di fabbrica, che completa anche oggi il fronte meridionale del Convento.
Nel 1986 la Colonia Penale viene abolita e I’immobiIe passa nella disponibilita prima del Demanio, poi degli Usi Civici, salvo la Chiesa che rimane in proprietà del Comune di Capraia.
Le opere degli anni ’90 per la realizzazione della nuova copertura mettono in sicurezza l’immobile, che giunge ai nostri giorni senza altri interventi.
- La proprietà
La Chiesa di S.Antonio risulta essere di proprietà del Comune di Capraia, pur avendo fatto parte dell’Amministrazione dell’ex colonia penale fino al 1986. Un’indagine in tal senso effettuata sui documenti d’archivio attesta che l’ immobile, pur essendone stato concesso l’uso nel corso dei vari secoli a diversi enti, è rimasto di proprietà comunale.
Si allega la dichiarazione del Tecnico Comunale che sintetizza i risultati di tale indagine.
Per quanto invece riguarda il convento di S. Francesco, facente anch’esso parte del complesso storico, la proprietà rimane in discussione. Gli uffici del Demanio rivendicano la proprietà della porzione, che pertanto rimane in predicato come attribuzione.
Considerata la situazione, che il Comune sta cercando di risolvere in via bonaria, l’Associazione “Amici della chiesa di S.Antonio” ha predisposto un progetto di restauro complessivo esteso a tutto il complesso storico, limitando però la richiesta di autorizzazioni agli enti interessati alla sola Chiesa di S.Antonio.
Il progetto relativo alla rimanente porzione( Convento) è finalizzato ad offrire una visione complessiva dell’intervento, stante l’unicità dei caratteri storici, architettonici e tipologici delle due parti.
Il comune di Capraia Isola pertanto, recepito ed approvato il progetto di restauro, richiede il rilascio delle necessarie autorizzazioni solo per la Chiesa di S.Antonio.
- Lo stato di fatto
La Chiesa di S. Antonio ed il Convento di S.Francesco si presentano in uno stato di totale abbandono ed i vari locali al piano terra adibiti abusivamente a depositi di vari materiali contribuiscono a rafforzare questa percezione di degrado generale.
La Chiesa di S.Antonio presenta esternamente una facciata caratterizzata dalla caduta o dal deterioramento degli intonaci originari. La porzione inferiore del fronte è caratterizzata da integrazioni di intonaci cementizi, che a causa dell’umidita ascendente dalle fondazioni si sono distaccati, evidenziando Ia tessitura muraria in conci di pietra, che presentano i giunti di allettamento con una malta di calce gravemente impoverita. I serramenti sono in totale stato di abbandono, il portone della Chiesa e stato recentemente sostituito, insieme alla realizzazione di una nuova cornice, che però risulta non coerente con le proporzioni della facciata.
Le cromie originarie o antiche della facciata sono a fatica percepibili.
Le pietre del sagrato, posate ad opus incertum, sono sconnesse ed infestate di radici.
II fianco Ovest della chiesa e rimasto invece ricoperto di intonaco, nella parti basse di tipo cementizio.
Anche l’interno è caratterizzato da uno stato di degrado generalizzato.
L’umidità di risalita ha danneggiato gravemente gli intonaci fino ad un’altezza di un metro, degradando anche le superfici stuccate degli altari presenti nelle sei cappelle laterali.
La presenza di piccioni all’interno della chiesa ha causato inoltre danni alle varie superfici e al pavimento spargendo guano su ogni superficie piana.
II pavimento in pietra esagonale bicroma è in più parti danneggiato dall’ incuria e dall’ umidità.
La navata centrale, l’unica, é accompagnata sui lati da tre cappelle per lato.
Lo spazio centrale è coperto con una volta a botte con unghie laterali in prossimità delle cappelle. La volta non presenta particolari dissesti, mentre le due cappelle più a Sud necessitano di interventi di consolidamento, insieme con la facciata, che mostra alcune fessure negli angoli tra il fronte e le cappelle.
Non vi sono altre manifeste criticità strutturali.
La copertura è stata realizzata ex novo con struttura lignea e sottostante cordolo in calcestruzzo armato.
II manto di copertura é stato realizzato in coppi di laterizio.
Sono del tutto assenti gli impianti sia meccanici che elettrici.
Gli apparati decorativi (altari, edicole, balaustre, cornici, lapidi) ed i dipinti presenti nella chiesa sono anch’essi in fase di avanzato degrado.
Anche il pianerottolo in legno dell’ organo ( non più presente), realizzato con raffinata manualita e rappresentante una porzione dello scafo di un naviglio , decorato con disegni policromi, necessita di un profondo restauro.
Sulla destra del presbiterio sono presenti alcuni locali collegati con il chiostro; da questi con una scala si sale ad altri locali al primo piano. Tutte le murature di questi locali sono prive di intonaco e a tratti sconnesse. Una porzione di volta al primo piano é crollata,
Alla destra del presbiterio sono presenti altri tre Iocali, con probabile funzione di sacrestia, che attualmente sono chiusi con Iucchetti, in quanto ospitano vari reperti ritrovati negli scavi archeologici recentemente conclusi in relazione ai Iavori di restauro del castello.
Il progetto rappresenta in specifiche tavole le planimetrie, gli alzati e lo stato del degrado.
In fase esecutivasi dovrà procedere ad un rilievo geometrico in opportuna scala delle più significative porzioni di fabbricato.
- Le previsioni urbanistiche e i Vincoli
Il piano strutturale, approvato dal Consiglio Comunale con delibera n.3/12, prevede per la totalità del complesso (Chiesa,Convento, volumi aggiunti) azioni volte alla “riqualificazione del complesso edilizio mediante interventi di restauro per finalità polifunzionali …… con eliminazione delle attuali condizioni di degrado e di incompatibilità ……… “
Nelle regole di attuazione S.Antonio è così descritto: “Il complesso di S. Antonio mostra i segni evidenti di interventi di ampliamento (connessi alle esigenze dell’ex Colonia Penale), che ne hanno in parte compromesso la peculiare qualità insediativa, introducendo elementi incongruenti rispetto ai caratteri originari. …… Gli spazi aperti circostanti mostrano segni di abbandono e di degrado.”
La precedente “Variante alla disciplina del recupero del patrimonio edilizio esistente” del 2001, ancora in vigore in attesa del Regolamento Urbanistico, prevede per il complesso l’obbligo del Piano di Recupero.
Nel frattempo è stato definito dalla Sovrintendenza ai Monumenti di Pisa il vincolo monumentale sulla parte storica del complesso (in corso di notifica).
- Il progetto di restauro e riuso
Il progetto di restauro attiene alla parte storica del complesso, costituita dalla Chiesa e dal Convento francescano. I volumi aggiunti nel corso degli anni per le esigenze dell’ex Colonia Penale non sono presi in considerazione, in quanto dovranno essere analizzati nel quadro del Piano di recupero previsto, all’interno del quale la parte storica rimarrà come invariante.
Il progetto riguarda specificatamente la Chiesa di S.Antonio, la cui proprietà risulta essere comunale. Le previsioni progettuali relative al Convento, la cui proprietà è invece in discussione,viene rappresentata come inquadramento generale, considerata l’unicità del complesso.
Il progetto viene presentato con definizione definitiva per la parte architettonica, mentre per le previsioni ingegneristiche il livello di approfondimento è preliminare.
Per la facciata della Chiesa il progetto risulta essere esecutivo.
Gli obiettivi che il progetto si prefigge sono:
– il restauro conservativo del bene, con la finalità di consolidare e conservare un complesso che altrimenti sarebbe destinato in pochi anni ad un degrado irreversibile;
– Ia valorizzazione e il riuso del bene, come contenitore di nuove funzioni qualificate in grado di dare vita al complesso con una presenza quotidiana di personale
– la creazione di un polo di funzioni pubbliche e culturali
– l’attivazione di un processo virtuoso di riqualificazione della porzione storica del complesso ,in grado di rendere interessante anche dal punto di vista economico l’intervento di risorse private sulle altre volumetrie prive di interesse storico architettonico del comparto, pur nella consapevolezza della delicatezza paesaggistica del possibile futuro intervento.
- La Chiesa di S.Antonio
I primi due lotti di intervento previsti dal progetto riguardano la Chiesa di S.Antonio.
Sarà innanzitutto restaurata la facciata della Chiesa, su iniziativa della Associazione degli amici di S.Antonio, che sulla base di una specifica convenzione con il Comune di Capraia si è impegnata ad eseguire direttamente i lavori con fondi propri.
L’intervento da una parte vuole rispondere ad una necessità urgente di conservazione, in quanto la facciata versa in gravissime condizioni di degrado; dall’altra rappresenta un primo segno, concreto e tangibile, di una coscienza collettiva del valore di identità della Chiesa, che potrebbe anticipare l’intervento economicamente più significativo sugli impianti, le superfici e gli apparati decorativi interni.
I lavori relativi alla facciata ( 1° lotto) sinteticamente saranno i seguenti:
- Indagini conoscitive preliminari sulle murature, sulle superfici e sulle modanature.
- Consolidamento della muratura con iniezioni di calci strutturali.
- Rimozione degli intonaci ammalorati o cementizi ed integrazione con intonaci di calce.
- Discialbo e consolidamento degli intonaci esistenti e delle modanature.
- Restauro della statua di S.Antonio.
- Restauro/sostituzione degli infissi.
Le tavole esecutive e le schede di intervento allegate al progetto meglio documentano i lavori previsti. Per il primo lotto è stato stimato un costo complessivo di 50.000 Euro.
Un secondo lotto di interventi riguarderà la Chiesa nelle sue parti interne.
Dal punto di vista statico la fabbrica non presenta situazioni di gravi criticità, essendo stato rifatto il tetto negli anni 1990. Solo le due prime cappelle necessitano del posizionamento di due tiranti. La Chiesa presenta invece un gravissimo degrado nelle superfici interne e nei ricchi apparati decorativi presenti. Sono di particolare interesse sei altari, uno per ciascuna cappella, e una balaustra lignea dell’antico organo, egregiamente dipinta. In ciascuna cappella sono inoltre presenti quadri con temi religiosi di pregio diversificato.
L’intervento dovrà sostituire gli intonaci, che presentano consistenti distacchi per l’umidità ascendente oltre ad intervenire con le tecniche proprie del restauro sulle superfici e le modanature che arricchiscono la sala.
Il progetto prevede anche la realizzazione di un impianto elettrico e di riscaldamento di base, in grado quest’ultimo di contribuire al controllo dell’umidità ascendente e ambientale.
I lavori saranno assistiti, là dove necessario, dalla presenza di un archeologo accreditato.
Il progetto prevede anche la sistemazione della pavimentazione del sagrato esterno, che prospetta sulla Cala San Francesco.
La chiesa, non più consacrata, sarà utilizzata come sala pluriuso per la comunità Capraiese con una capienza di 99 posti a sedere. I vani della sacrestia saranno a supporto delle attività in corso. In essa potranno svolgersi mostre, conferenze, concerti, riunioni pubbliche, considerate anche le buone prestazioni acustiche del volume interno.
Ad essa si potrà accedere in modo indipendente dal sagrato, oppure dall’interno del Chiostro del Convento, a cui la sala è collegata tramite un vano prospiciente il porticato settentrionale.
Il costo dell’intervento viene stimato in 412.000 euro. La superficie interna è pari a mq.320.
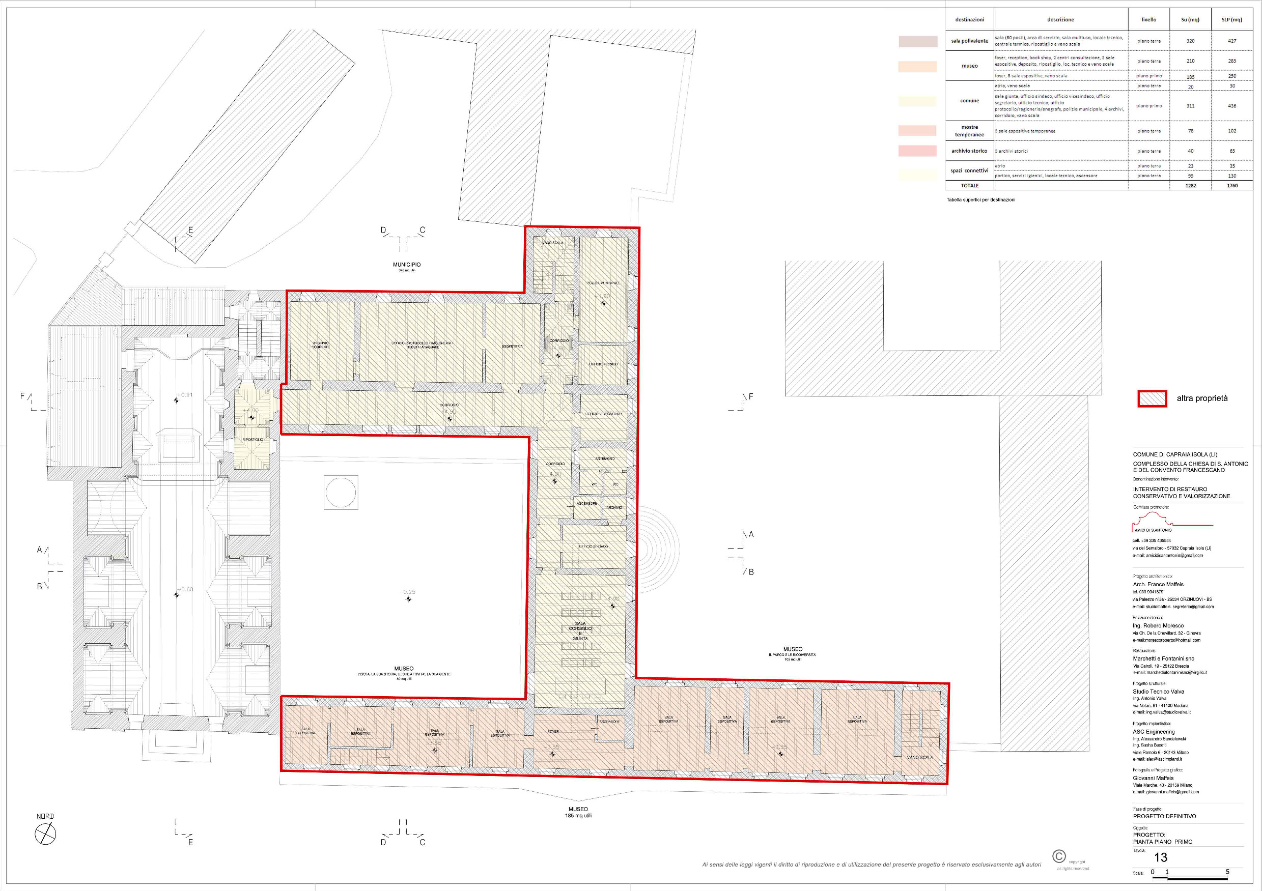
2. Il Convento francescano
Il progetto di restauro del Convento, pur rimanendo una ipotesi previsionale, da verificare al momento della fattibilità di un concreto intervento, prevede una destinazione di tipo pubblico, compatibile con la tipologia dell’immobile.
In particolare una volta entrati nel piccolo chiostro dall’attuale ingresso, al piano terra si affacciano sul lato Nord tre sale per mostre temporanee, collegate tramite l’esistente porticato con l’ampia sala della Chiesa. Sul lato est, sempre dal porticato si potrà accedere ai bagni e tramite ascensore al piano superiore. Sempre sul lato est sarà presente l’ingresso al Museo della Comunità, che , partendo dall’antico refettorio del Convento si svilupperà nell’ala meridionale su due piani, occupando i fabbricati otto-novecenteschi costruiti dall’ex Colonia. Il Museo avrà un locale dedicato alla documentazione delle pubblicazioni sull’isola con Bookshop e successivamente tre sezioni di interesse: etnografica, archeologica e ambientale. Naturalmente il progetto museale dovrà indicare la specifica destinazione di ciascuna sala.
Per il piano primo il progetto prevede la realizzazione del Municipio Comunale, che attualmente occupa un edificio isolato ( la casa del Direttore) non molto distante, che però non risulta essere funzionale allo scopo in quanto distribuito su due piani.
Gli uffici potrebbero essere distribuiti adeguatamente in un unico piano, comprendendo anche la saletta sopra l’ex refettorio destinata ai consigli comunali. Nel caso di Consigli/incontri particolarmente affollati, dallo stesso piano si può accedere alla sala della Chiesa.
Questa destinazione avrebbe il pregio di garantire tutto l’anno la presenza di un presidio del complesso, utilizzando il personale anche per garantire, senza particolari spese di gestione, l’accesso guidato (su richiesta nei mesi non estivi) agli spazi museali.
Una tavola del progetto prevede una destinazione alternativa con una struttura di accoglienza con 5 camere doppie e servizi connessi. Tale soluzione però non risulta convincente sia per la quantità non remunerativa dei posti letto, sia per la stagionalità dell’uso, sia per la minore sinergia con gli spazi museali da gestire.
Tale destinazione potrebbe invece essere prevista per gli edifici a settentrione del Convento, con accesso dall’antica strada che definiva l’ortaglia del Convento stesso.
In essa il Comune potrebbe ospitare le comitive organizzate (studenti e ricercatori) che spesso frequentano l’isola, senza compromettere l’uso del corpo principale.
Il chiostro,dove è presente anche un suggestivo “pozzo”, opportunamente restaurato nella sua pavimentazione e ben illuminato potrebbe diventare nelle sere di estate un luogo di ritrovo, ben protetto dal vento, per iniziative culturali e proiezione di filmati “sotto le stelle”, eventualmente anche con la presenza di un piccolo bar stagionale.
Dal punto di vista degli interventi specifici di restauro, la struttura non presenta particolari criticità statiche, essendo stato realizzato un nuovo tetto negli anni Novanta.
Andrà valutata la necessità di procedere ad alcuni rinforzi della muratura e di alcune coperture a volta del piano terra.
Si prevede l’apertura dei tamponamenti al piano terra, al fine di ripristinare il porticato del Chiostro. Al primo piano, che oggi si presenta come grande spazio aperto, si procederà alla suddivisione dei locale in funzione della destinazione d’uso che si andrà a definire, con conseguenti scelte anche per gli impianti.
Tutte le facciate, oggi quasi completamente disintonacate, dovranno essere protette da nuovi intonaci di calce. Dovranno essere realizzate tutte le finiture interne, compresi serramenti interni ed esterni.
Eventuali indagini stratigrafiche sulle murature, condotte da un archeologo esperto, potranno dare preziose informazioni sulle fasi della costruzione del complesso.
E’ previsto che il restauro possa realizzarsi in tre lotti funzionali, in modo di poter accedere a finanziamenti successivi, già avviando la funzione nell’ala restaurata.
La previsione di spesa complessiva per il restauro del Convento è di 1.970.000 Euro.
La superficie complessiva dei due piani, compreso lo spazio aperto del chiostro è pari a mq 1619.
Elenco progettisti
Progetto architettonico
Studio Arch. Franco Maffeis
Via Palestro 5/A – 25034 Orzinuovi (BS)
e-mail: studiomaffeis.segreteria@gmail.com
Con:
Geom. Giuseppe Bombardieri
Ing. Cristiana Cò
Geom. Enrico Corradi
Arch. Andrea Manuelli
Arch.Jr. Daniel Provezza
Arch. Kasha Westrych
Relazione storica:
Ing. Roberto Moresco
Ch. De la Chevillard, 32 -1208 Ginevra
e-mail:morescoroberto@hotmail.it
Restauratore:
Marchetti e Fontanini snc
Via Cairoli, 19 – 25122 Brescia
e-mail: marchettiefontaninisnc@virgilio.it
Progetto strutturale:
Studio Tecnico Valva
Via Notari, 81 – 41100 Modena
e-mail: ing.valva@studiovalva.it
Progetto impiantistico:
ASC Engineering
Ing. Alessandro Sandelewsky
Ing. Sasha Busetti
Viale Romolo, 6 20143 Milano
e-mail: alex@ascimpianti.it
Fotografia e progetto grafico:
Giovanni Maffeis
Viale Marche, 43 – 20159 Milano
e-mail: giovanni.maffeis@gmail.com
Coordinatore generale e direttore dei lavori.
Arch. Franco Maffeis
Via Palestro 5/A – 25034 Orzinuovi (BS)
e-mail: studiomaffeis.segreteria@gmail.com
Per allargare le immagini cliccare sull’immagine stessa
2. Relazione Architettonica
3. Schede di Restauro
4. Relazione Strutturale
5. Relazione Impianti

























